JUSTIFICACIÓN DEL PROYECTO
El proyecto que se plantea a continuación, realizado por primera vez en este espacio, está basado en la idea de “biblioteca de aula”.
“El rincón de la fantasía”, es un espacio destinado al disfrute de los niños con la lectura, siendo esta capaz tanto de transportarles a mundos mágicos, como de ser una fuente inagotable de información.
Este espacio estará dotado de una infinidad de libros, revistas y otros materiales. Gracias a su dinamización, a través de la permanente renovación de los recursos mencionados anteriormente, se incrementará de manera potencial el gusto por la lectura.
Algunas de las características que justifican el proyecto son:
· Desarrolla las cuatro funciones básicas del lenguaje (escuchar, hablar, leer y escribir).
· Los materiales deben estar siempre al alcance de los niños.
· Los materiales son atractivo para amenizar el aprendizaje.
· Los niños enriquecen su vocabulario.
· Familiariza a los niños con los diversos géneros literarios.
SITUACIÓN EN EL AULA
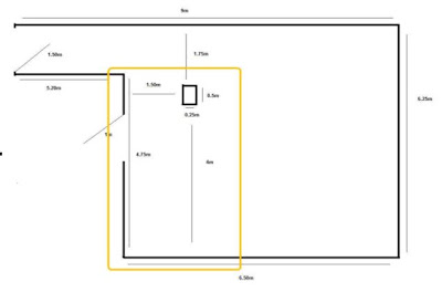
Nuestra biblioteca de aula la situaremos en la parte naranja señalada en el plano. El techo de esta zona es de cristal traslúcido, el cual permite la iluminación permanente de esta parte de la clase durante todo el día por lo que es un aspecto positivo para una biblioteca de aula. Además, la columna es una elemento arquitectónico que dificulta la organización de la clase, y de esta manera le sacaremos un buen uso. Así también quedará libre todo el resto de la clase para otras actividades.
DISEÑO
Colocaremos alrededor de la columna expositores para los libros y en la pared de enfrente de ésta las estanterías. En la esquina señalada en el plano habrá un tatami con cojines como zona de lectura para los niños. Al lado del tatami se colgará el cartel del buzón para meter las fichas de lectura.
CONTENIDO:
Los materiales idóneos para estar en una biblioteca, deben cumplir ciertos requisitos como son:
· Una portada atractiva que llame la atención de los niños.
· Contenidos diversos, para poder llegar a diferentes públicos.
· Diferentes materiales para experimentar con las texturas.
· Diversos formatos para adaptarse a todos los niños.
· Adaptados a la psicología evolutiva del niño.
· Vocabulario adaptado a los niveles existentes en el aula.
· Ilustraciones adaptadas al nivel del libro.
- Libros:
- “¿Dónde está mi almohada?”. Ana María Machado.
- “Los besos mágicos”. Juan Carlos Chandro.
- “Adivina cuánto te quiero”. Sam McBratney.
- “Un culete independiente”.José Luis Cortés.
- “El topo que quería saber quién se había hecho aquello en su cabeza”. Werner Holzwarth.
- “Vegetal como eres”. Saxton Freyman.
- “Enamorados”. Rebecca Dautremer.
- “Melodía en la ciudad”. Benjamin Lacombe.
- “Besos, besos”. Selma Mandine.
- “El libro negro de los colores”. Menena Cottin.
- “Cuéntame otra vez la noche en que nací”. Jamie Lee Curtis.
- “La pájara Pinta”. Gloria Fuertes.
- “La pata mete la pata”. Gloria Fuertes.
- “Diccionario estrafalario”. Gloria Fuertes.
- “Elmer”. David McKee.
- “Orejas de mariposa”. Luisa Aguilar.
- “Confundiendo historias”. Alessandro Sanna.
- “Casi”. Peter H. Reynolds.
- “¡Beso, beso!”. Margaret Wild.
· Otros materiales:
- Cuaderno viajero.
- Libros realizados en clase, tanto por los niños como para los niños.
- Revistas.
- Álbumes de imágenes. (¡A la cama Hipo!)
- Libros de consulta.
Todos estos materiales ya mencionados, irán repartidos en estos porcentajes.
· Libros de consulta……………10%
· Revistas………………………....5%
· Libros realizados en clase…...20%
· Textos folclóricos…………….25%
· Textos de autor………………25%
· Álbumes de imágenes………15%
GESTIÓN
Cada viernes acudirá un familiar a contar un cuento. No será ninguno de los de la biblioteca, ni podrá ser un libro leído.
Además, los niños tendrán todos los días un rato en el que podrán dedicar el tiempo a la lectura de los libros que más les gusten en el tatami.
DINAMIZACIÓN
Todos los días, excepto los viernes, la profesora hará la presentación de uno de los cuentos de la biblioteca, el cual será el libro de la semana.
Los viernes los niños podrán elegir el libro que deseen para llevárselo a casa el fin de semana. Deberán llevarse la ficha de lectura que aparece a continuación.
Tendrán que traer de vuelta el libro con la ficha rellena los lunes.
Los martes se dedicará un tiempo a que los niños que se han llevado libros cuenten su experiencia con ellos.



1 comentarios:
Ya le he comentado la biblioteca a Raquel (of the house) :D Mira allí las correcciones.
Publicar un comentario